ARAMA
Şehir Kameraları Kent Rehberi Nöbetçi Eczaneler
WhatsApp Destek Hattı Hemen Yazın

İLAN 04-08-2022 - 2

Geri

İLAN 04-08-2022 - 2

4 Ağustos 2022

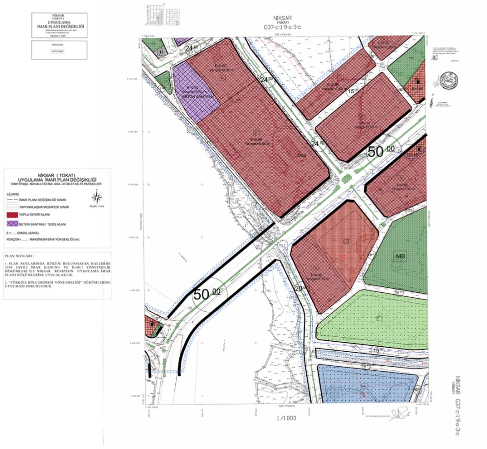
NİKSAR BELEDİYE BAŞKANLIĞINDAN

3194 Sayılı İmar Kanununun 8. maddesi ve mekansal planlar yapım yönetmeliğin 26,31,32. maddeleri gereğince, BELEDİYE MECLİSİMİZİN 02.08.2022 TARIH VE 59 SAYILI KARARI ILE ONAYLANAN İLÇEMİZ FATİH MAHALLESİ TAPUNUN 864 ADA 47-66-67-68 VE 75 NOLU PARSELDE HAZIRLANAN 1/1000 ÖLÇEKLİ UYGULAMA İMAR PLANI DEĞİŞİKLİĞİ 04.08.2022 - 02.09.2022 tarihleri arasında belediye giriş katına asılmıştır.

 

İlgililere ilan olunur.

Niksar Belediye Başkanlığı